当前位置: 主页 > 装修案例 > 太原华都公园里170平三室两厅欧式风格装修效果图
2020-06-06 18:11:10
太原装修公司-独特壹家装饰
8457次
分享 :
案例风格
欧式风格
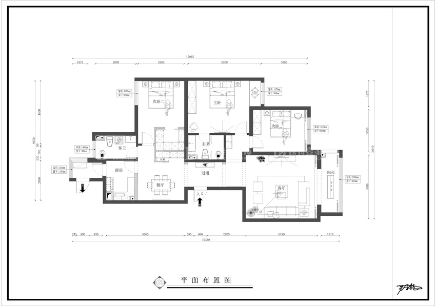
案例户型
三居室
设计师
孟伟杰
房屋面积
170m²
项目名称:华都公园里
户型面积:170㎡
户型名称:三室两厅
装修风格:欧式风格
工程造价:22万
设计师:王耀敏
装修公司:太原装修公司-独特壹家装饰
设计说明:本案例来自华都公园里楼盘项目,房子结构三室两厅一厨两卫户型,业主四十多岁的年龄,儿女双全,希望家是温馨浪漫的港湾,因此设计上采用欧式风格装修为主!







文章说明:装修效果图是本公司为业主提供的原创设计展示,如需转载请提前联系本公司。知识类内容为小编手写原创,图片因需要与内容有更高的匹配度因此部分来源于网络,如有侵权请联系本公司,小编第一时间整改删除。
免费申请户型规划
专属设计师免费1对1全程服务
你家预算
108080元
免费电话报价
400-1616-213