当前位置: 主页 > 装修案例 > 太原绿景未来城135平新中式风格三居室装修效果图
2020-06-07 16:29:58
太原装修公司-独特壹家装饰
4466次
分享 :
案例风格
中式风格
案例户型
三居室
设计师
刘阳宝
房屋面积
135m²
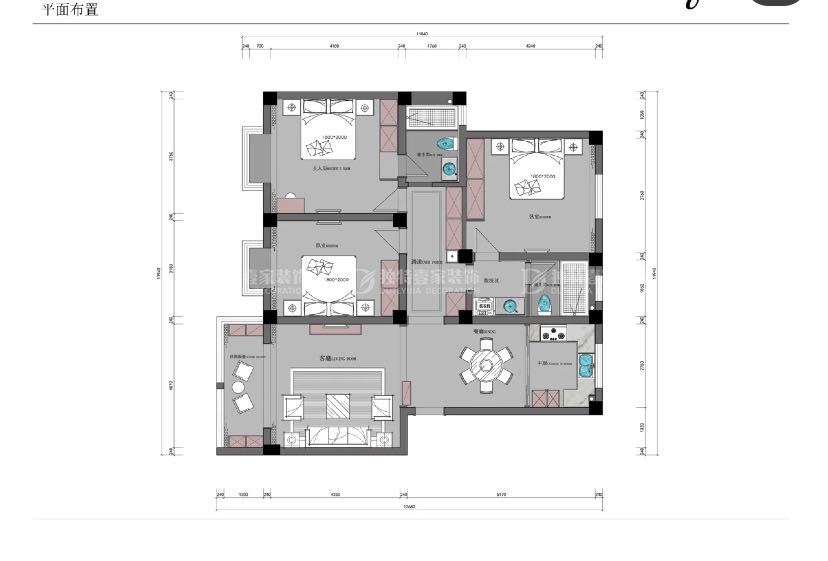
项目名称:绿景未来城
户型面积:135平米
户型名称:三室两厅
装修风格:新中式风格
设计师:赵芳
装修公司:太原装修公司-独特壹家装饰
工程造价:19万
设计说明:本案例来自绿景未来城楼盘项目,房子面积135平三室两厅一厨两卫户型结构,业主是一对非常可爱的中年夫妇,这套房子是他们的第二套房子,前期咨询就比较有想法,最终确定下了新中式风格,大理石的电视背景墙整体感极强,餐厅和客厅中间的隔断也比较新颖,水蓝色的沙发让新中式区别于中式的暗沉,最后装下来整体花了19万。





文章说明:装修效果图是本公司为业主提供的原创设计展示,如需转载请提前联系本公司。知识类内容为小编手写原创,图片因需要与内容有更高的匹配度因此部分来源于网络,如有侵权请联系本公司,小编第一时间整改删除。
免费申请户型规划
专属设计师免费1对1全程服务
你家预算
108080元
免费电话报价
400-1616-213