当前位置: 主页 > 装修案例 > 中正亲贤们132平现代风格三居室装修效果图
2021-08-20 14:47:57
独特壹家装饰
7085次
分享 :
案例风格
现代简约
案例户型
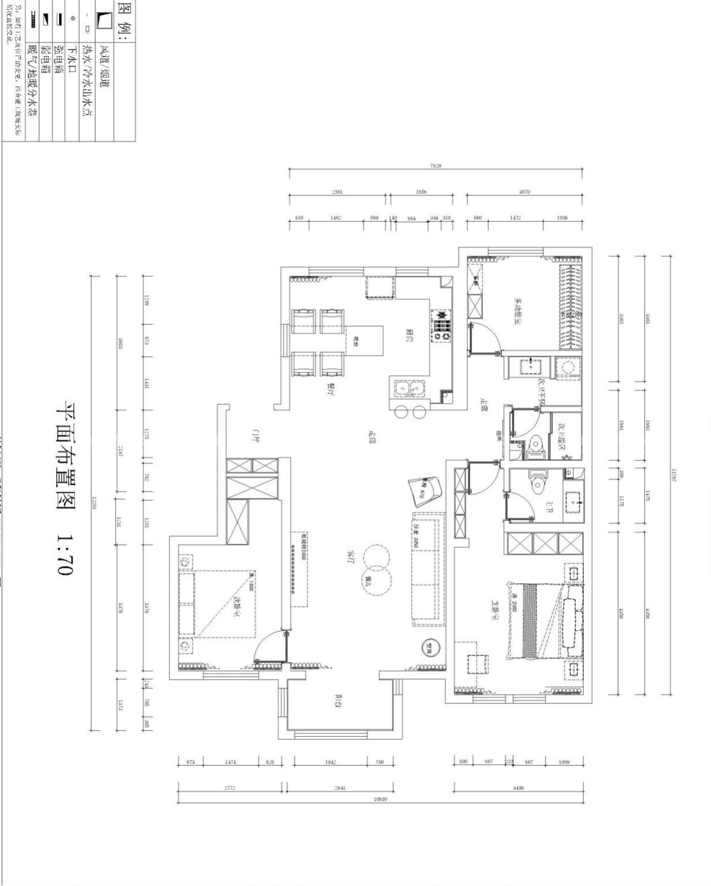
三居室
设计师
徐雪梅
房屋面积
132m²
案例说明:在设计上强调功能性,结构和形式的完整,更追求材料、技术、空间的表现深度与精确,运用最少的设计语言,表达出最深的设计内涵。删繁就简,去伪存真,以色彩的高度凝练和造型的极度简洁,在满足功能需要的前提下,卫生间做了一个简单的干湿分离,整体颜色以浅色为主,主卧在灰色调的空间基础,布置上灰色布艺床铺,摆上显眼活泼的当下流行的爱马仕橙色作为装饰,床头墙做了一个简单的硬包处理,让简约的空间也显得跳跃自然。









文章说明:装修效果图是本公司为业主提供的原创设计展示,如需转载请提前联系本公司。知识类内容为小编手写原创,图片因需要与内容有更高的匹配度因此部分来源于网络,如有侵权请联系本公司,小编第一时间整改删除。
免费申请户型规划
专属设计师免费1对1全程服务
你家预算
108080元
免费电话报价
400-1616-213